Vi tilbyr et ferdig modulært helårshus, som fungerer utmerket både som komfortabelt feriehus og som helårs fritidsbolig. Vår gjennomtenkte modell med høy standard er tilgjengelig med en gang, og kombinerer moderne design med funksjonalitet, samtidig som den sikrer komfort gjennom alle årstider. Våre modulhus er klare til umiddelbar montering, noe som gjør det mulig å raskt realisere drømmen om egen fritidsplass. I møte med dynamiske endringer på eiendomsmarkedet er modulhuset for helårsbruk fra Unihouse et svar på de økende behovene hos investorer som søker raske, moderne og pålitelige boligløsninger.
Hvorfor velge våre modulære helårshus?
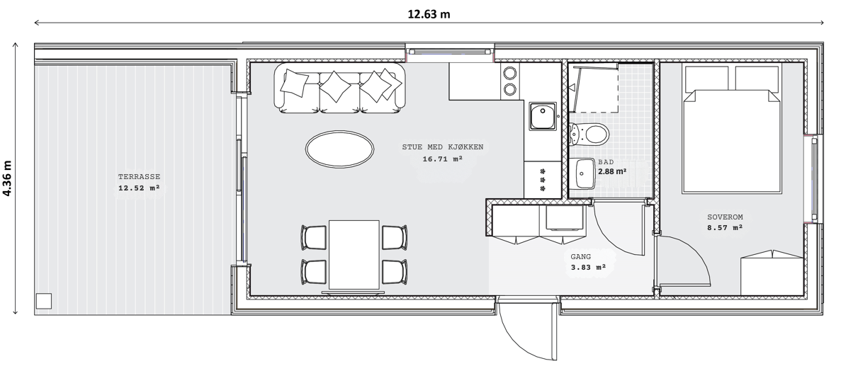
Helårshus i modulær konstruksjon er moderne løsninger som tilbyr ferdige boenheter med høy standard. Den prefabrikerte konstruksjonen muliggjør rask montering, noe som gjør dem til et ideelt valg både for forretningsinvestorer og private personer. Husene utmerker seg med energieffektivitet, holdbarhet og mulighet for bruk hele året. Modulhus blir et utmerket alternativ for de som ønsker et komfortabelt sted å slappe av eller vil investere i et lønnsomt prosjekt. Helårshus med liten bruksflate fungerer godt som funksjonelle løsninger på fritidstomter eller som økonomiske startboliger.
Effektiv byggeprosess og optimal bruksflate
Moderne prefabrikkerte hus, som våre Unihouse-hus, gjør det mulig å betydelig forkorte byggeprosessen – ferdige moduler leveres til byggeplassen, hvor de på noen timer blir et fullt funksjonelt sted å bo. Modulær teknologi gjør at bygging av små modulhus går mye raskere enn ved tradisjonell bygging. Dette er en ideell løsning for personer som verdsetter moderne tilnærming til bygging, som kombinerer teknologi med praktisk tilpasning til egne boligbehov. Takket være gjennomtenkt konstruksjon med trekonstruksjon, tilbyr selv små prefabrikkerte hus i 3D-teknologi maksimal termisk komfort og ergonomisk utnyttelse av plass. Ferdige modulhus er utstyrt med full teknisk infrastruktur og moderne interiør.

